How To Add Drain On Roof Plan Revt

Solved Roof Drains In Plan Autodesk Community Revit Products

Solved Roof Drains In Plan Autodesk Community Revit Products

Roof Drains Autodesk Community Revit Products

Roof Drains Autodesk Community Revit Products

About Editing Floor And Roof Shape Revit Products 2019 Autodesk Knowledge Network

About Editing Floor And Roof Shape Revit Products 2019 Autodesk Knowledge Network

Video Shape Editing Roof And Floor Slabs Revit Products 2018 Autodesk Knowledge Network

Video Shape Editing Roof And Floor Slabs Revit Products 2018 Autodesk Knowledge Network

Roof Drain Pipe Sizing Autodesk Community Revit Products

Roof Drain Pipe Sizing Autodesk Community Revit Products

36 Adding Floor And Roof Drains Revit 2020 For Mep Essential Tutorial Arabic Youtube

36 Adding Floor And Roof Drains Revit 2020 For Mep Essential Tutorial Arabic Youtube

36 Adding Floor And Roof Drains Revit 2020 For Mep Essential Tutorial Arabic Youtube

Https 1drv ms u s asdpc1rl4 r6m2jt8kqlxvwtm1eh e b5ukzp mep mechanical electrical and plumbing design is one of the major co.

How to add drain on roof plan revt.

For type select a view type from the list or click edit type to modify an existing view type or create a new view type. Add another view to your project or duplicate an existing view. Csi masterformat 2014 title. If you found t.

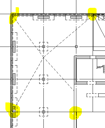
Modify the view range establish or change the horizontal planes that control an object s visibility in plan. Control the visibility of plan regions after creating a plan region you can make it visible or hide it in the plan view. This revit architecture tutorial is show you how to fast and easily design roof from floor plan design automatic check it out. Several tools in the shape editing panel provide ways of creating points for the drain locations as well as creating lines to define how the slope is going to drain.

Roof floor and paving drainage systems. Don t forget guys if you like our videos please subscribe. Use a plan region to define a cut plane at a different height than the cut plane used for the rest of the plan view. Csi masterformat 2014 code.

This video shows you how to add a split line and a point to a flat roof so that you can edit the roof to allow for drainage channels gulleys. Roof floor and paving drainage systems. Select one or more levels for which you want to create a plan view.

Tricks For Create Drainage Sytem In Revit Youtube

Tricks For Create Drainage Sytem In Revit Youtube

Solved Roof That Slopes In 2 Directions Autodesk Community Revit Products

Solved Roof That Slopes In 2 Directions Autodesk Community Revit Products

Revit For Mep Plumbing Systems Manually Adding Pipes Youtube

Revit For Mep Plumbing Systems Manually Adding Pipes Youtube

Solved Downspouts Autodesk Community Revit Products

Solved Downspouts Autodesk Community Revit Products

Revitcity Com Roof Slope And Tapered Insulation

Revitcity Com Roof Slope And Tapered Insulation

Roof Cutoff Level Youtube

Roof Cutoff Level Youtube

Gutter End Caps In Revit Architecture Youtube

Gutter End Caps In Revit Architecture Youtube

Solved Use Revit To Show Water Flow For A Water Management Plan Autodesk Community Revit Products

Solved Use Revit To Show Water Flow For A Water Management Plan Autodesk Community Revit Products

Revit Bay Window Tutorial Youtube

Revit Bay Window Tutorial Youtube

Solved Floor Modify Sub Elements Help Autodesk Community Revit Products

Solved Floor Modify Sub Elements Help Autodesk Community Revit Products

Http Classes Engr Oregonstate Edu Cce Winter2018 Cce203 Revit Textbook Wing 2017 Inclasswork Ch7 Roofs Pdf

Http Classes Engr Oregonstate Edu Cce Winter2018 Cce203 Revit Textbook Wing 2017 Inclasswork Ch7 Roofs Pdf

How To Add Crickets To A Flat Roof In Revit Youtube

How To Add Crickets To A Flat Roof In Revit Youtube

Flat Roofs In Revit Tutorial Youtube

Flat Roofs In Revit Tutorial Youtube

Adding Crickets

Adding Crickets

Tapered Roof Mass

Tapered Roof Mass

Revit Roof Tip 7 Use Shape Editing To Create Flat Roof Slope Youtube

Revit Roof Tip 7 Use Shape Editing To Create Flat Roof Slope Youtube

Revit Mep Basic Creating A Drain Route Youtube

Revit Mep Basic Creating A Drain Route Youtube

Revit Tutorial Constant Slope Rigging Family Rigid Insulation Therevitkid Com Tutorials Tips Products And Revit Tutorial Rigid Insulation Tutorial

Revit Tutorial Constant Slope Rigging Family Rigid Insulation Therevitkid Com Tutorials Tips Products And Revit Tutorial Rigid Insulation Tutorial

Modeling To Construction Documents Creating Construction Details In Revit Autodesk University

Modeling To Construction Documents Creating Construction Details In Revit Autodesk University

Steel Truss In Revit 2015 Roof Trusses Steel Trusses Roof Truss Design

Steel Truss In Revit 2015 Roof Trusses Steel Trusses Roof Truss Design

About Slope Arrows Revit Products 2019 Autodesk Knowledge Network

About Slope Arrows Revit Products 2019 Autodesk Knowledge Network

Place Spaces Up To The Roof Revit Products 2016 Autodesk Knowledge Network

Place Spaces Up To The Roof Revit Products 2016 Autodesk Knowledge Network

About Drafting Views Revit Products Autodesk Knowledge Network

About Drafting Views Revit Products Autodesk Knowledge Network

Scupper An Opening In A Wall Or Parapet For The Drainage Of Rainwater From A Roof Parapet Flat Roof Flat Roof Shed

Scupper An Opening In A Wall Or Parapet For The Drainage Of Rainwater From A Roof Parapet Flat Roof Flat Roof Shed

Source : pinterest.com